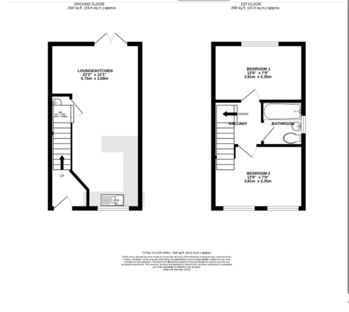
**TWO BEDROOM, END TERRACED HOUSE* NO CHAIN** MGY are pleased to offer this modern two bedroom end terrace with off road parking for two cars, side access and additional parking space for visitors. This lovely home located on the Eastside Quarter development in Llanedeyrn is situated near local amenities, schools and access to A48/M4. The property briefly comprises of hallway, open plan lounge/kitchen, downstairs w.c, two double bedrooms and main bathroom. Outside space includes elevated decking area at rear of garden.
HALLWAY(W 1.57mm) Enter via front door into hallway. Stairs to first floor and door to kitchen/lounge. Radiator.
LOUNGE/DINER22' 1" x 12' 0" (6.75 m x 3.68 m (max) Double glazed uPVC window to front aspect. Double glazed uPVC French doors to rear garden. Modern fitted kitchen with base and wall units with tiled splashbacks and work surfaces incorporating one and a half stainless steel sink with separate hot and cold tap. Breakfast bar. Built in oven and 4 ring electric hob with extractor hood over. Wall mounted cupboard housing gas central heating boiler. Plumbing for automatic washing machine and space for white goods. Understairs storage. Door to downstairs W.C. Two radiators. Wall mounted modern electric fire. LVT flooring.
DOWNSTAIRSW.C Two piece suite comprising of wall hung wash hand basin with separate hot and cold tap and w.c. Ventilation fan. Small radiator.
STAIRS/LANDING Loft access via uPVC hatch. Door to bedroom one and two.
BEDROOMONE12' 0" x 7' 8" (3.68m x 2.36m) Two double glazed uPVC windows to front aspect. Radiator. Stair recess.
BEDROOM29' 11" x 7' 10" (3.03m (From wardrobe) x 2.39m) Window to rear aspect with fitted roller blind. Radiator.
BATHROOM5' 11" x 5' 6" (1.82m x 1.69m) Three piece suite comprising of w.c, pedestal wash hand basin with separate hot and cold tap and bath with mixer tap and with mains shower over. Part tiled walls.
GARDEN Mostly laid to lawn with elevated decking area at rear of garden. Garden shed.
Ready to take the next step? Schedule a viewing for this property today! Simply
provide your contact information, and we'll be in touch to arrange a convenient time. Your
dream home is just a click away!